CAM — Renovatie van een herenhuis

De renovatie van deze neoclassicistische woning uit 1911, opgenomen op de inventaris van bouwkundig erfgoed, vertrekt vanuit een respectvolle omgang met het bestaande. Zonder uitbreidingen of volumewijzigingen wordt de woning hertekend om de ruimtelijke ervaring te vergroten en de relatie met de tuin te versterken — een vraag die centraal stond in de ambities van de bouwheer.

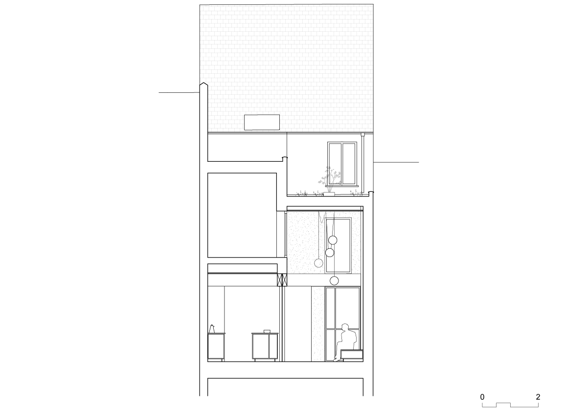
Door het weghalen van een binnenmuur die de achterbouw opdeelde in twee kleine ruimtes, en een deel van de tussenvloer van de achterbouw, ontstaat een grote, open en lichtrijke leefkeuken in directe relatie met de tuin. De dubbelhoge ruimte laat het daglicht diep doordringen in het interieur en creëert een nieuwe dialoog tussen de verschillende binnenruimtes. De achtergevel wordt radicaal geopend, waarbij een groot stalen vouw-schuifraam de grens tussen binnen en buiten laat vervagen.

De verbouwing kiest nadrukkelijk voor een ecologische en circulaire benadering. De bestaande structuur wordt maximaal behouden, terwijl natuurlijke materialen de nieuwe lagen vormen: een vloeropbouw met schelpen en kalkhennep, en binnenafwerkingen in leempleister die het binnenklimaat reguleren. Zo ontstaat een lichte, duurzame gezinswoning waarin erfgoed, comfort en ecologie samenkomen in een ingetogen evenwicht.

  • locatieBrussel
  • opdrachtgeverparticulier
  • oppervlakte61 m2
  • statusvoltooid
  • periode2024 - 2026
  • stabiliteitAagje Bruch
  • epbSmart Energie
  • veiligheidEJMC

CAM — Renovatie van een herenhuis

De renovatie van deze neoclassicistische woning uit 1911, opgenomen op de inventaris van bouwkundig erfgoed, vertrekt vanuit een respectvolle omgang met het bestaande. Zonder uitbreidingen of volumewijzigingen wordt de woning hertekend om de ruimtelijke ervaring te vergroten en de relatie met de tuin te versterken — een vraag die centraal stond in de ambities van de bouwheer.

Door het weghalen van een binnenmuur die de achterbouw opdeelde in twee kleine ruimtes, en een deel van de tussenvloer van de achterbouw, ontstaat een grote, open en lichtrijke leefkeuken in directe relatie met de tuin. De dubbelhoge ruimte laat het daglicht diep doordringen in het interieur en creëert een nieuwe dialoog tussen de verschillende binnenruimtes. De achtergevel wordt radicaal geopend, waarbij een groot stalen vouw-schuifraam de grens tussen binnen en buiten laat vervagen.

De verbouwing kiest nadrukkelijk voor een ecologische en circulaire benadering. De bestaande structuur wordt maximaal behouden, terwijl natuurlijke materialen de nieuwe lagen vormen: een vloeropbouw met schelpen en kalkhennep, en binnenafwerkingen in leempleister die het binnenklimaat reguleren. Zo ontstaat een lichte, duurzame gezinswoning waarin erfgoed, comfort en ecologie samenkomen in een ingetogen evenwicht.

  • locatieBrussel
  • opdrachtgeverparticulier
  • oppervlakte61 m2
  • statusvoltooid
  • periode2024 - 2026
  • stabiliteitAagje Bruch
  • epbSmart Energie
  • veiligheidEJMC