office—u
projecten
visie
studio
3 / 7 .
ontdek meer >
pvk
Gelijkvloerse uitbreiding van een arbeiderswoning, Leuven
hec
Renovatie van een driegevelwoning in een naoorlogse sociale woonwijk, Leuven
sep
Renovatie van een bescheiden herenhuis, Brussel
hdb
Renovatie van een appartement in een monumentale herenwoning, Brussel
god
Verbouwing en uitbreiding van het voormalige Godshuis tot gemeentelijke hub met lokaal dienstencentrum, bibpunt en spreekkamers, en verbinding met het bestaande woonzorgcentrum., Puurs-Sint-Amands
albert
Renovatie van een driegevel art-decowoning, Brussel
sep
Renovatie van een bescheiden herenhuis, Brussel
waut
Gelijkvloerse verbouwing van een rijwoning, Leuven
santa
Renovatie en uitbreiding van de Sint-Antonius Abtkerk te Meulestede tot socio-culturele ruimte, Gent
zavel
Stadslandbouw- en natuurprogramma op de Zavelenberg, Brussel
sijs
Duurzaam pilootproject voor cohousing met 12 wooneenheden en gemeenschappelijke functies, Leuven
albert
Renovatie van een driegevel art-decowoning, Brussel
ruis
Herbestemming van de Jan Ruusbroec kerk met polyvalente ruimte, brasserie, kerkfunctie en omgevingsaanleg, Sint-Pieters-Leeuw
sijs
Duurzaam pilootproject voor cohousing met 12 wooneenheden en gemeenschappelijke functies, Leuven
spel
Nieuwbouw flexibel bredeschoolgebouw met sportzaal en naschoolse kinderopvang, en herinrichting speelplaats, aanleg van een buurtpark en bouw van een multifunctionele luifel, Puurs-Sint-Amands
waut
Gelijkvloerse verbouwing van een rijwoning, Leuven
mor
Volledige interne reorganisatie en verbouwing van een stadswoning in bouwvallige staat, Brussel
muizen
Herbestemming van de Sint-Albertuskerk in Muizen tot kantoorgebouw met buurtfuncties, Mechelen
mor
Volledige interne reorganisatie en verbouwing van een stadswoning in bouwvallige staat, Brussel
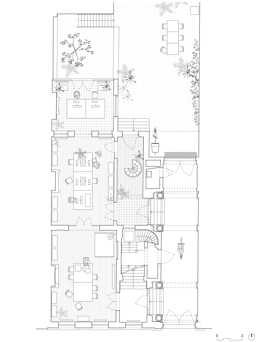
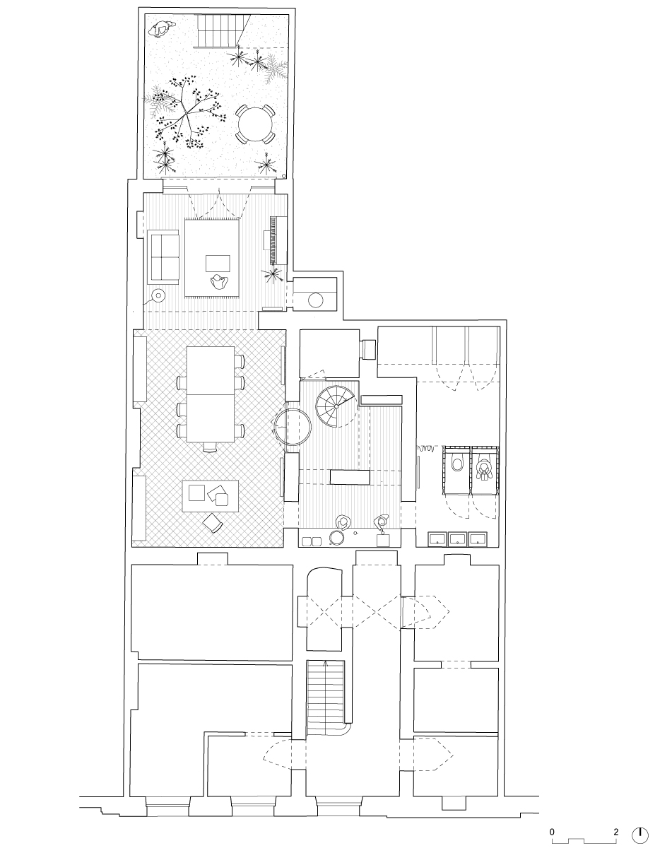
rog
Renovatie van een herenhuis in geometrische art nouveau-stijl, Brussel
rog
Renovatie van een herenhuis in geometrische art nouveau-stijl, Brussel
rog
Renovatie van een herenhuis in geometrische art nouveau-stijl, Brussel
baaf
Herbestemming van de Sint-Baafskerk naar een cohousingproject met gedeelde buurtvoorzieningen, Brugge
jozef
Renovatie van een arbeiderswoning, Leuven
albert
Renovatie van een driegevel art-decowoning, Brussel
ruis
Herbestemming van de Jan Ruusbroec kerk met polyvalente ruimte, brasserie, kerkfunctie en omgevingsaanleg, Sint-Pieters-Leeuw
rog
Renovatie van een herenhuis in geometrische art nouveau-stijl, Brussel
zavel
Stadslandbouw- en natuurprogramma op de Zavelenberg, Brussel
dupont
Herbestemming van een schoolgebouw naar een Geïntegreerd Welzijnscentrum, Brussel
hdb
Renovatie van een appartement in een monumentale herenwoning, Brussel
sijs
Duurzaam pilootproject voor cohousing met 12 wooneenheden en gemeenschappelijke functies, Leuven
vel
Cohousingproject met 5 nieuwbouwwoningen, gemeenschappelijke tuin en functies en openbaar fietspad, Leuven
vel
Cohousingproject met 5 nieuwbouwwoningen, gemeenschappelijke tuin en functies en openbaar fietspad, Leuven
dupont
Herbestemming van een schoolgebouw naar een Geïntegreerd Welzijnscentrum, Brussel
vlak
Renovatie van een stadswoning, Brussel
haacht
Inrichting van de eigen kantoren op de gelijkvloerse en halfondergrondse verdieping van een geklasseerde herenwoning uit de 19de eeuw, Brussel
muizen
Herbestemming van de Sint-Albertuskerk in Muizen tot kantoorgebouw met buurtfuncties, Mechelen
hdb
Renovatie van een appartement in een monumentale herenwoning, Brussel
mor
Volledige interne reorganisatie en verbouwing van een stadswoning in bouwvallige staat, Brussel
santa
Renovatie en uitbreiding van de Sint-Antonius Abtkerk te Meulestede tot socio-culturele ruimte, Gent
god
Verbouwing en uitbreiding van het voormalige Godshuis tot gemeentelijke hub met lokaal dienstencentrum, bibpunt en spreekkamers, en verbinding met het bestaande woonzorgcentrum., Puurs-Sint-Amands
spel
Nieuwbouw flexibel bredeschoolgebouw met sportzaal en naschoolse kinderopvang, en herinrichting speelplaats, aanleg van een buurtpark en bouw van een multifunctionele luifel, Puurs-Sint-Amands
dupont
Herbestemming van een schoolgebouw naar een Geïntegreerd Welzijnscentrum, Brussel
albert
Renovatie van een driegevel art-decowoning, Brussel
sep
Renovatie van een bescheiden herenhuis, Brussel
sijs
Duurzaam pilootproject voor cohousing met 12 wooneenheden en gemeenschappelijke functies, Leuven
pan
Herbestemming van de voormalige paardenstallen van melkfabriek Hollandia tot een multidisciplinaire medische praktijk, Brussel
pan
Herbestemming van de voormalige paardenstallen van melkfabriek Hollandia tot een multidisciplinaire medische praktijk, Brussel
cam
Renovatie van een herenhuis, Brussel
pvk
Gelijkvloerse uitbreiding van een arbeiderswoning, Leuven
pvk
Gelijkvloerse uitbreiding van een arbeiderswoning, Leuven
ruis
Herbestemming van de Jan Ruusbroec kerk met polyvalente ruimte, brasserie, kerkfunctie en omgevingsaanleg, Sint-Pieters-Leeuw
haacht
Inrichting van de eigen kantoren op de gelijkvloerse en halfondergrondse verdieping van een geklasseerde herenwoning uit de 19de eeuw, Brussel
spel
Nieuwbouw flexibel bredeschoolgebouw met sportzaal en naschoolse kinderopvang, en herinrichting speelplaats, aanleg van een buurtpark en bouw van een multifunctionele luifel, Puurs-Sint-Amands
dupont
Herbestemming van een schoolgebouw naar een Geïntegreerd Welzijnscentrum, Brussel
muizen
Herbestemming van de Sint-Albertuskerk in Muizen tot kantoorgebouw met buurtfuncties, Mechelen
sep
Renovatie van een bescheiden herenhuis, Brussel
santa
Renovatie en uitbreiding van de Sint-Antonius Abtkerk te Meulestede tot socio-culturele ruimte, Gent
ruis
Herbestemming van de Jan Ruusbroec kerk met polyvalente ruimte, brasserie, kerkfunctie en omgevingsaanleg, Sint-Pieters-Leeuw
uit
Nieuwbouw appartementsgebouw op een complexe hoek, Antwerpen
dupont
Herbestemming van een schoolgebouw naar een Geïntegreerd Welzijnscentrum, Brussel
dupont
Herbestemming van een schoolgebouw naar een Geïntegreerd Welzijnscentrum, Brussel
ruis
Herbestemming van de Jan Ruusbroec kerk met polyvalente ruimte, brasserie, kerkfunctie en omgevingsaanleg, Sint-Pieters-Leeuw
rog
Renovatie van een herenhuis in geometrische art nouveau-stijl, Brussel
dupont
Herbestemming van een schoolgebouw naar een Geïntegreerd Welzijnscentrum, Brussel
muizen
Herbestemming van de Sint-Albertuskerk in Muizen tot kantoorgebouw met buurtfuncties, Mechelen
mor
Volledige interne reorganisatie en verbouwing van een stadswoning in bouwvallige staat, Brussel
mor
Volledige interne reorganisatie en verbouwing van een stadswoning in bouwvallige staat, Brussel
vlak
Renovatie van een stadswoning, Brussel
sijs
Duurzaam pilootproject voor cohousing met 12 wooneenheden en gemeenschappelijke functies, Leuven
vel
Cohousingproject met 5 nieuwbouwwoningen, gemeenschappelijke tuin en functies en openbaar fietspad, Leuven
vlak
Renovatie van een stadswoning, Brussel
pan
Herbestemming van de voormalige paardenstallen van melkfabriek Hollandia tot een multidisciplinaire medische praktijk, Brussel
dupont
Herbestemming van een schoolgebouw naar een Geïntegreerd Welzijnscentrum, Brussel
muizen
Herbestemming van de Sint-Albertuskerk in Muizen tot kantoorgebouw met buurtfuncties, Mechelen
pan
Herbestemming van de voormalige paardenstallen van melkfabriek Hollandia tot een multidisciplinaire medische praktijk, Brussel
sijs
Duurzaam pilootproject voor cohousing met 12 wooneenheden en gemeenschappelijke functies, Leuven
cam
Renovatie van een herenhuis, Brussel
dupont
Herbestemming van een schoolgebouw naar een Geïntegreerd Welzijnscentrum, Brussel
uit
Nieuwbouw appartementsgebouw op een complexe hoek, Antwerpen
sijs
Duurzaam pilootproject voor cohousing met 12 wooneenheden en gemeenschappelijke functies, Leuven